超聲波液位差計

- AK-SX7083流量積算儀
- ◆ 本儀表適合于蒸汽和一般氣體的測量,可用于內部計量和貿易計量。 ◆ 本儀表符合新版流量積算儀檢定規程《JJG1003-2016》 ◆ 本安裝使用手冊是以具備一定的流量計經驗知識為對象編寫的,使

- 數顯壓力表
- AK-SXYLB數字壓力表為全電子結構。前端采用高精度壓阻式壓力傳感器,輸出信號由高精度,低溫漂的放大器放大處理,送入高精度的A/D轉換器,轉換成微處理器可以處理的數字信號,經過運算處理,

- 乙酸乙酯液位計
- 乙酸乙酯液位計是公司引進吸收國外同類產品,并加以提高的產品。系列產品可以做到高密封、防泄漏和在高溫、高壓、高粘度、強腐蝕性條件下可靠地測量液位,全過程測量無盲區
超聲波液位差計
一、產品介紹
AK-P3型超聲波液位差計內置溫度補償,功率自適應,采用多項自研的,擁有全新的信號處理技術,的提高了儀表的測量精度,對干擾回波有明顯得抑制功能。
AK-P3型超聲波液位差計安裝、維護、標定簡單。產品廣泛適用于化工、水處理、水利、食品、糧食等行業的物位測量,具有安全、清潔、精度高、壽命長、穩定可靠、安裝維護方便、讀數簡捷等特點。
二、主要技術參數
|
型 號 |
AK-P3 |
壓 力 |
4個大氣壓以下 |
|
測量范圍 |
0~15m |
儀表顯示 |
自帶LCD顯示液位或空間距離 |
|
盲 區 |
|
模擬輸出 |
4~20mA |
|
測距精度 |
0.2~0.5% |
環境溫度 |
- |
|
測距分辨率 |
|
防護等級 |
IP65 |
三、產品特點 :
●價格便宜,性價比高
●采用SMD技術,提高儀器可靠性。
●自動功率調整、增益控制、溫度補償。
●先進的檢測技術,豐富的軟件功能適應各種復雜環境。
●采用波形計算技術,提高儀表的測量精度。
●具有干擾回波的抑止功能保證測量數據的真實。
●16位D/A轉換,提高電流輸出的精度和分辯率。
●傳感器采用四氟乙烯材料,可用于各種腐蝕性場合。
●多種輸出形式:可編程繼電器輸出、高精度4-20mA電流輸出、Rs-485數字通信輸出
四、安裝注意事項:
1:變送器下部的三個進線孔孔徑8mm,請使用線徑為6mm~8mm的電纜;
2:露天放置變送器時,進線孔的壓緊螺母務必擰緊,否則防水效果大大降低;
3:進線口若不使用,請在進線孔內塞一個6mm~8mm的電纜頭,然后擰緊壓緊螺母;
4:由于變送器采用LCD液晶。雖然本公司使用的液晶是寬溫、防紫外線的,但是陽光長時間暴曬,還是會影響液晶的壽命。所以,變送器室外放置時,請盡量將LCD液晶面朝北。
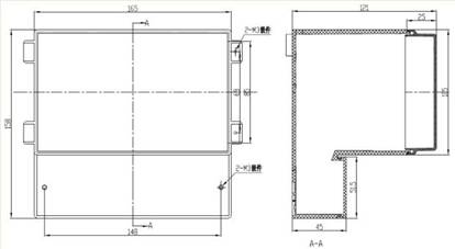
安裝尺寸圖:
<
相關資訊
聯系奧科
固話:0517-86919886
傳真:0517-86919886
手機:15261725556
地址:江蘇金湖縣工業園區工一路



